パークグレイス駒込 (Park Grace 駒込) | 6階 | 2LDK
ポイント
分譲マンション、ペット可、礼金なし、フリーレント、設備充実
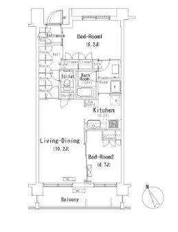
パークグレイス駒込(Park Grace 駒込)6階2LDK(56.73㎡)ペット可のお部屋。【間取り/LDK13.2帖/洋室6.2帖、洋室4.3帖】南向きバルコニーですので日当たり良好。独立キッチンは3口ガスシステムキッチン。ペットの飼育が可能なお部屋です。フリーレント・礼金なしなので初期費用をおさえられます。~パークグレイス駒込(Park Grace 駒込)のすべてのお部屋をご紹介可能です。~
| 所在階 | 間取 | 面積 | 賃料 | 管理費 | 敷金 | 礼金 | 築年数 | お問合せ | お気に入り |
|---|---|---|---|---|---|---|---|---|---|
| 6階 | 2LDK | 56.73m² | 207,000円 | 12,000円 | 2ヶ月 | 0ヶ月 | 2007年月 | 契約済み | + |
| 物件名 | パークグレイス駒込 (Park Grace 駒込) | ||
|---|---|---|---|
| 住所 | 東京都豊島区駒込4-8-12 地図 | ||
| 最寄駅 | JR山手線 巣鴨駅 徒歩5分 JR山手線 駒込駅 徒歩7分 東京メトロ南北線 駒込駅 徒歩8分 |
||
| 賃料 | 207,000円 | 管理費 | 12,000円 |
| 間取り | 2LDK | 面積 | 56.73m² |
| 築年月 | 2007年月 | 構造 | RC造 |
| 総階数 | 地上8階 | 入居 | 即 |
| 更新料 | 新賃料の1ヶ月分 | 駐車場 | 月額 37,800円~ |
| 設備 | 2階以上, 分譲賃貸, 低層, フリーレント, 礼金0, ペット可, 楽器可, 駅近(5分以内), 複数駅利用可, 複数路線利用可, 南向き, 日当り良好, オートロック, TVインターフォン, システムキッチン, カウンターキッチン, 独立キッチン, ガスコンロ, 3口コンロ以上, バス・トイレ別, ウォシュレット, 独立洗面台, オートバス, 浴室乾燥機, フローリング, 床暖房, エアコン, クローゼット, バルコニー, ゴミ置場 (敷地内), インターネット対応, 宅配ボックス, 駐車場有り, | ||
| 備考 | 問合番号 | kc4974-603 | |





















