ラフォンテ渋谷3丁目 (La Fonte Shibuya 3 chome) | 2階 | 1LDK
ポイント
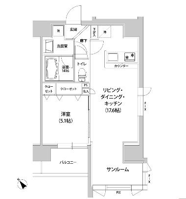
角部屋2面採光、インターネット無料、カウンターキッチン
ラフォンテ渋谷3丁目 (La Fonte Shibuya 3 chome)2階、1LDK(49.37㎡)【間取り/LDK17.6帖/洋室5.1帖】角部屋2面採光のお部屋。ウォッシュレット、浴室乾燥機、シューズインクローゼット、インターネット無料。▼ラフォンテ渋谷3丁目 (La Fonte Shibuya 3 chome)のすべてのお部屋をご紹介可能です▼
| 所在階 | 間取 | 面積 | 賃料 | 管理費 | 敷金 | 礼金 | 築年数 | お問合せ | お気に入り |
|---|---|---|---|---|---|---|---|---|---|
| 2階 | 1LDK | 49.37m² | 231,000円 | 10,000円 | 1ヶ月 | 1ヶ月 | 2016年03月 | 契約済み | + |
| 物件名 | ラフォンテ渋谷3丁目 (La Fonte Shibuya 3 chome) | ||
|---|---|---|---|
| 住所 | 東京都渋谷区渋谷3-26 地図 | ||
| 最寄駅 | JR山手線 渋谷駅 徒歩6分 東急東横線 代官山駅 徒歩13分 JR山手線 恵比寿駅 徒歩13分 |
||
| 賃料 | 231,000円 | 管理費 | 10,000円 |
| 間取り | 1LDK | 面積 | 49.37m² |
| 築年月 | 2016年03月 | 構造 | RC造 |
| 総階数 | 地上14階 | 入居 | 即 |
| 更新料 | 新賃料の1ヶ月分 | 駐車場 | 月額50760円(要問合せ) |
| 設備 | 新築, 2階以上, 駅近(5分以内), 複数駅利用可, 複数路線利用可, 角部屋, 南向き, 日当り良好, 天井高, オートロック, TVインターフォン, システムキッチン, カウンターキッチン, 独立キッチン, ガスコンロ, バス・トイレ別, ウォシュレット, 独立洗面台, オートバス, 浴室乾燥機, フローリング, エアコン, クローゼット, バルコニー, ゴミ置場 (敷地内), インターネット対応, インターネット無料, 宅配ボックス, 駐車場有り, | ||
| 備考 | 問合番号 | kc5548-202 | |
この物件の空室一覧
| 所在階 | 間取 | 面積 | 賃料 | 管理費 | 敷金 | 礼金 | 詳細 | 問合せ | お気に入り |
|---|---|---|---|---|---|---|---|---|---|
| 2階 | 1LDK | 44.64㎡ | 218000円 | 10000円 | 1ヶ月 | 1ヶ月 | 詳細 | 契約済み | + |
| 2階 | 1LDK | 47.27㎡ | 222000円 | 10000円 | 1ヶ月 | 1ヶ月 | 詳細 | 契約済み | + |
| 6階 | 1LDK | 49.37㎡ | 225000円 | 10000円 | 1ヶ月 | 1ヶ月 | 詳細 | 契約済み | + |
| 6階 | 1LDK | 47.27㎡ | 228000円 | 10000円 | 1ヶ月 | 1ヶ月 | 詳細 | 契約済み | + |
| 8階 | 1LDK | 49.37㎡ | 237000円 | 10000円 | 1ヶ月 | 1ヶ月 | 詳細 | 契約済み | + |
| 9階 | 1LDK | 44.64㎡ | 225000円 | 10000円 | 1ヶ月 | 1ヶ月 | 詳細 | 契約済み | + |
| 13階 | 1LDK | 44.64㎡ | 229000円 | 10000円 | 1ヶ月 | 1ヶ月 | 詳細 | 契約済み | ![]() |
| 14階 | 1LDK | 49.37㎡ | 244000円 | 10000円 | 1ヶ月 | 1ヶ月 | 詳細 | 契約済み | + |
| 14階 | 1LDK | 47.27㎡ | 237000円 | 10000円 | 1ヶ月 | 1ヶ月 | 詳細 | 契約済み | + |

























