アークヒルズフロントタワーRoP (ARK HILLS FRONT TOWER RoP) | 11階 | 3LDK
ポイント
全住戸最高3.0mの天井高、六本木ヒルズクラブや都心4箇所のヒルズスパ利用権、高級分譲マンション
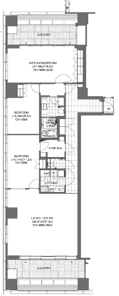
アークヒルズフロントタワーRoP11階、3LDK(166.08㎡)。LDK約35.0帖/洋室16.9帖/洋室11.8帖/洋室9.5帖の角部屋3面採光の3LDKタイプのお部屋となります。大型キッチンタイプですので、お料理をされる方も便利。ウォークインクローゼットも完備していますので、収納も豊富。オートバス機能付。リビング側はバルコニー付。~高級賃貸.jpは「アークヒルズフロントタワーRoP (ARK HILLS FRONT TOWER RoP)」の全てのお部屋をご紹介可能です。最新空室情報ほか、掲載中のお部屋以外にもご希望があればお気軽にお問合わせください~
| 所在階 | 間取 | 面積 | 賃料 | 管理費 | 敷金 | 礼金 | 築年数 | お問合せ | お気に入り |
|---|---|---|---|---|---|---|---|---|---|
| 11階 | 3LDK | 166.08m² | 1,260,000円 | 0円 | 4ヶ月 | 0ヶ月 | 2011年01月 | 問合せ | + |
| 物件名 | アークヒルズフロントタワーRoP (ARK HILLS FRONT TOWER RoP) | ||
|---|---|---|---|
| 住所 | 東京都港区赤坂2-23-1 地図 | ||
| 最寄駅 | 東京メトロ南北線 六本木一丁目駅 徒歩4分 東京メトロ銀座線 溜池山王駅 徒歩4分 東京メトロ千代田線 赤坂駅 徒歩7分 |
||
| 賃料 | 1,260,000円 | 管理費 | 0円 |
| 間取り | 3LDK | 面積 | 166.08m² |
| 築年月 | 2011年01月 | 構造 | SRC造 |
| 総階数 | 地上22階地下1階 | 入居 | 即 |
| 更新料 | 新賃料1ヶ月分。 | 駐車場 | 有り |
| 設備 | 新築, 2階以上, タワーマンション, 分譲賃貸, 礼金0, ペット可, 楽器可, 駅近(5分以内), 複数駅利用可, 複数路線利用可, フロントサービス(コンシェルジュ), フィットネスジム, トランクルーム, 車寄せ, LDK18畳以上, LDK25畳以上, 角部屋, 南向き, 日当り良好, 天井高, オートロック, TVインターフォン, システムキッチン, 独立キッチン, IHコンロ, 3口コンロ以上, 浄水器, 食器洗乾燥機, ディスポーザー, バス・トイレ別, ウォシュレット, 独立洗面台, オートバス, 浴室乾燥機, 洗濯乾燥機, フローリング, カーペット, 床暖房, エアコン, ビルトインエアコン, クローゼット, ウォークインクローゼット, シューズインクローゼット, バルコニー, ゴミ置場 (敷地内), ゴミ置場(各階), インターネット対応, インターネット無料, 宅配ボックス, 駐車場有り, | ||
| 備考 | 問合番号 | kc0354-1106 | |
この物件の空室一覧
| 所在階 | 間取 | 面積 | 賃料 | 管理費 | 敷金 | 礼金 | 詳細 | 問合せ | お気に入り |
|---|---|---|---|---|---|---|---|---|---|
| 7階 | 1LDK | 107.80㎡ | 760000円 | 0円 | 4ヶ月 | 0ヶ月 | 詳細 | 問合せ | + |
| 8階 | 1LDK | 107.80㎡ | 770000円 | 0円 | 4ヶ月 | 0ヶ月 | 詳細 | 問合せ | + |
| 10階 | 3LDK | 166.08㎡ | 1240000円 | 0円 | 4ヶ月 | 0ヶ月 | 詳細 | 問合せ | + |
| 11階 | 1LDK | 100.17㎡ | 750000円 | 0円 | 4ヶ月 | 0ヶ月 | 詳細 | 問合せ | + |
| 11階 | 1LDK | 100.17㎡ | 730000円 | 0円 | 4ヶ月 | 0ヶ月 | 詳細 | 問合せ | + |

























