ハンドレッドステイレジデンス (HUNDRED STAY RESIDENCE) | 4階 | 2LDK
ポイント
家具家電付きのメゾネットタイプのお部屋。高い天井高明るい室内。敷金1、礼金0。
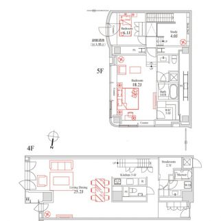
4階2LDK(159.55㎡)のお部屋になります。天井高が約3m ~4mあり開放感があり明るい室内になります。オシャレな照明、家具家電付き等室内設備も充実しています。快適な生活を送るための防犯設備も揃ってます。敷金1、礼金0です。●○●○高級賃貸.jpは「ハンドレッドステイレジデンス」の全てのお部屋をご紹介可能です。掲載中のお部屋以外にもご希望があればお気軽にお問合わせください●○●○
| 所在階 | 間取 | 面積 | 賃料 | 管理費 | 敷金 | 礼金 | 築年数 | お問合せ | お気に入り |
|---|---|---|---|---|---|---|---|---|---|
| 4階 | 2LDK | 159.55m² | 443,000円 | 12,000円 | 1ヶ月 | 0ヶ月 | 1992年08月 | 契約済み | + |
| 物件名 | ハンドレッドステイレジデンス (HUNDRED STAY RESIDENCE) | ||
|---|---|---|---|
| 住所 | 東京都新宿区百人町2-27-7 地図 | ||
| 最寄駅 | JR山手線 新宿駅 徒歩15分 JR山手線 新大久保駅 徒歩6分 JR中央線 大久保駅 徒歩3分 |
||
| 賃料 | 443,000円 | 管理費 | 12,000円 |
| 間取り | 2LDK | 面積 | 159.55m² |
| 築年月 | 1992年08月 2008年増改築 | 構造 | SRC造 |
| 総階数 | 地上22階地下4階 | 入居 | 即 |
| 更新料 | 駐車場 | ||
| 設備 | 2階以上, タワーマンション, デザイナーズ, メゾネット, 駅近(5分以内), 複数駅利用可, 複数路線利用可, 南向き, 日当り良好, 天井高, オートロック, TVインターフォン, システムキッチン, カウンターキッチン, 独立キッチン, IHコンロ, 3口コンロ以上, バス・トイレ別, ウォシュレット, 独立洗面台, オートバス, 浴室乾燥機, 洗濯乾燥機, フローリング, エアコン, ビルトインエアコン, クローゼット, ウォークインクローゼット, ゴミ置場 (敷地内), インターネット対応, インターネット無料, 宅配ボックス, 駐車場有り, | ||
| 備考 | 問合番号 | kc0435-0405 | |
この物件の空室一覧
| 所在階 | 間取 | 面積 | 賃料 | 管理費 | 敷金 | 礼金 | 詳細 | 問合せ | お気に入り |
|---|---|---|---|---|---|---|---|---|---|
| 3階 | 3LDK | 185.30㎡ | 498000円 | 12000円 | 1ヶ月 | 0ヶ月 | 詳細 | 契約済み | + |
| 5階 | 1LDK | 85.07㎡ | 288000円 | 12000円 | 1ヶ月 | 0ヶ月 | 詳細 | 契約済み | + |
| 6階 | 1LDK | 52.89㎡ | 157000円 | 12000円 | 1ヶ月 | 1ヶ月 | 詳細 | 契約済み | + |
| 10階 | 1LDK | 79.91㎡ | 253000円 | 12000円 | 1ヶ月 | 0ヶ月 | 詳細 | 契約済み | + |





















