キャスティル代沢 (Castile Daizawa) | 1階 | 4LDK
ポイント
戸建感覚・低層マンション・礼金なし・庭付き・ペット可・駐車場付
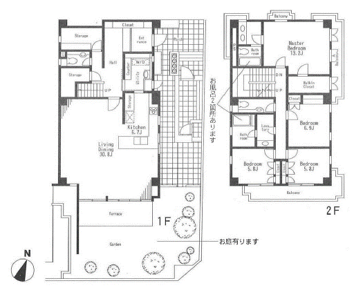
キャスティル代沢 (Castile Daizawa)1階、4LDK+2S(198.11㎡)。LDK37.5帖/洋室13.2帖/洋室6.9帖/洋室5.8帖/洋室5.8帖の角部屋2面採光の4LDK+2Sタイプのお部屋となります。庭付きの戸建感覚のお部屋になります。カウンターキッチンタイプですので、お料理をされる方も便利。ウォークインクローゼット収納も豊富。オートバス機能付。リビング側はバルコニー付。~高級賃貸.jpは「キャスティル代沢 (Castile Daizawa)」の全てのお部屋をご紹介可能です。最新空室情報ほか、掲載中のお部屋以外にもご希望があればお気軽にお問合わせください~
| 所在階 | 間取 | 面積 | 賃料 | 管理費 | 敷金 | 礼金 | 築年数 | お問合せ | お気に入り |
|---|---|---|---|---|---|---|---|---|---|
| 1階 | 4LDK | 198.11m² | 590,000円 | 0円 | 2ヶ月 | 0ヶ月 キャンペーン中 | 1989年03月 | 契約済み | + |
| 物件名 | キャスティル代沢 (Castile Daizawa) | ||
|---|---|---|---|
| 住所 | 東京都世田谷区代沢5-4-18 地図 | ||
| 最寄駅 | 京王井の頭線 下北沢駅 徒歩8分 小田急小田原線 世田谷代田駅 徒歩9分 京王井の頭線 池ノ上駅 徒歩15分 |
||
| 賃料 | 590,000円 | 管理費 | 0円 |
| 間取り | 4LDK | 面積 | 198.11m² |
| 築年月 | 1989年03月 | 構造 | RC造 |
| 総階数 | 地上3階地下1階 | 入居 | 即 |
| 更新料 | 新賃料1ヶ月分。 | 駐車場 | 月額42000円 |
| 設備 | 2階以上, 低層, メゾネット, 礼金0, ペット可, 複数駅利用可, 複数路線利用可, 専用庭(テラス), LDK18畳以上, 角部屋, 南向き, 日当り良好, 天井高, オートロック, TVインターフォン, システムキッチン, カウンターキッチン, 独立キッチン, ガスコンロ, 3口コンロ以上, 浄水器, バス・トイレ別, ウォシュレット, 独立洗面台, オートバス, 浴室乾燥機, フローリング, エアコン, クローゼット, ウォークインクローゼット, バルコニー, ゴミ置場 (敷地内), インターネット対応, 宅配ボックス, 駐車場有り, | ||
| 備考 | 問合番号 | kc0373-105 | |
この物件の空室一覧
| 所在階 | 間取 | 面積 | 賃料 | 管理費 | 敷金 | 礼金 | 詳細 | 問合せ | お気に入り |
|---|---|---|---|---|---|---|---|---|---|
| 1階 | 4LDK | 98.62㎡ | 300000円 | 0円 | 2ヶ月 | 0ヶ月 | 詳細 | 契約済み | + |
| 3階 | 4LDK | 98.62㎡ | 300000円 | 0円 | 2ヶ月 | 0ヶ月 | 詳細 | 契約済み | + |
























