MFPR目黒タワー(MFPR MEGURO TOWER) | 21階 | 2LDK
ポイント
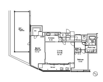
南西向き、角部屋、100㎡超え!LDK20帖以上!ルーフバルコニー、ペット相談可
MFPR目黒タワー(MFPR MEGURO TOWER) 21階 2LDK+WIC+SIC(105.83㎡)【間取り/LDK24.1帖/洋室13.3帖/洋室8.9帖+WIC+SIC】南西向き、角部屋、ペット相談可のお部屋。グリル、食器洗浄乾燥機、システムキッチン搭載、追焚き機能、浴室乾燥機、クローゼット、大型ウォークインクローゼット、シューズインクローゼット、ルーフバルコニー完備。重厚で高級感溢れる内装デザインが好評です!▼MFPR目黒タワー(MFPR MEGURO TOWER)の全てのお部屋をご紹介可能です。
| 所在階 | 間取 | 面積 | 賃料 | 管理費 | 敷金 | 礼金 | 築年数 | お問合せ | お気に入り |
|---|---|---|---|---|---|---|---|---|---|
| 21階 | 2LDK | 105.83m² | 510,000円 | 50,000円 | 1ヶ月 | 2ヶ月 | 2008年02月 | 契約済み | + |
| 物件名 | MFPR目黒タワー(MFPR MEGURO TOWER) | ||
|---|---|---|---|
| 住所 | 東京都目黒区目黒1-24-9 地図 | ||
| 最寄駅 | JR山手線 目黒駅 徒歩7分 東京メトロ南北線 目黒駅 徒歩7分 |
||
| 賃料 | 510,000円 | 管理費 | 50,000円 |
| 間取り | 2LDK | 面積 | 105.83m² |
| 築年月 | 2008年02月 | 構造 | RC造 |
| 総階数 | 地上25階地下2階 | 入居 | 相談 |
| 更新料 | 新賃料1ヶ月 | 駐車場 | 月額 41,040円~(要確認) |
| 設備 | 2階以上, タワーマンション, デザイナーズ, ペット可, 複数駅利用可, 複数路線利用可, フロントサービス(コンシェルジュ), ルーフバルコニー, トランクルーム, 車寄せ, LDK18畳以上, 角部屋, 南向き, 日当り良好, 天井高, オートロック, TVインターフォン, システムキッチン, 独立キッチン, ガスコンロ, 3口コンロ以上, 浄水器, 食器洗乾燥機, バス・トイレ別, ウォシュレット, 独立洗面台, オートバス, 浴室乾燥機, フローリング, エアコン, クローゼット, ウォークインクローゼット, シューズインクローゼット, バルコニー, ゴミ置場 (敷地内), ゴミ置場(各階), インターネット対応, 宅配ボックス, 駐車場有り, | ||
| 備考 | ※賃貸条件や空室情報及びキャンペーン等は予告なく変更・終了する場合がございます。あらかじめご了承下さい。 | 問合番号 | kc0319-15 |
この物件の空室一覧
| 所在階 | 間取 | 面積 | 賃料 | 管理費 | 敷金 | 礼金 | 詳細 | 問合せ | お気に入り |
|---|---|---|---|---|---|---|---|---|---|
| 1階 | 2LDK | 97.50㎡ | 411000円 | 30000円 | 2ヶ月 | 0ヶ月 | 詳細 | 契約済み | + |
| 1階 | 2LDK | 84.51㎡ | 403000円 | 30000円 | 1ヶ月 | 2ヶ月 | 詳細 | 契約済み | + |
| 2階 | 3LDK | 84.96㎡ | 378000円 | 30000円 | 2ヶ月 | 0ヶ月 | 詳細 | 契約済み | + |
| 2階 | 2LDK | 77.64㎡ | 565000円 | 15000円 | 1ヶ月 | 1ヶ月 | 詳細 | 問合せ | + |
| 3階 | 3LDK | 79.69㎡ | 344000円 | 30000円 | 2ヶ月 | 0ヶ月 | 詳細 | 契約済み | + |
| 3階 | 3LDK | 103.63㎡ | 500000円 | 50000円 | 1ヶ月 | 2ヶ月 | 詳細 | 契約済み | + |
| 3階 | 2LDK | 97.50㎡ | 520000円 | 30000円 | 1ヶ月 | 2ヶ月 | 詳細 | 契約済み | + |
| 4階 | 3LDK | 84.96㎡ | 363000円 | 30000円 | 2ヶ月 | 0ヶ月 | 詳細 | 契約済み | + |
| 4階 | 2LDK | 88.12㎡ | 392000円 | 30000円 | 2ヶ月 | 0ヶ月 | 詳細 | 契約済み | + |
| 4階 | 2LDK | 68.83㎡ | 313000円 | 20000円 | 2ヶ月 | 0ヶ月 | 詳細 | 契約済み | + |
| 5階 | 3LDK | 88.12㎡ | 387000円 | 30000円 | 2ヶ月 | 0ヶ月 | 詳細 | 契約済み | + |
| 5階 | 2LDK | 68.83㎡ | 369000円 | 30000円 | 1ヶ月 | 2ヶ月 | 詳細 | 契約済み | + |
| 6階 | 3LDK | 88.12㎡ | 540000円 | 30000円 | 1ヶ月 | 2ヶ月 | 詳細 | 契約済み | + |
| 6階 | 2LDK | 78.95㎡ | 361000円 | 30000円 | 1ヶ月 | 2ヶ月 | 詳細 | 契約済み | + |
| 7階 | 2LDK | 68.83㎡ | 363000円 | 20000円 | 1ヶ月 | 2ヶ月 | 詳細 | 契約済み | + |
| 8階 | 2LDK | 78.95㎡ | 400000円 | 30000円 | 1ヶ月 | 2ヶ月 | 詳細 | 契約済み | + |
| 9階 | 3LDK | 84.96㎡ | 392000円 | 30000円 | 2ヶ月 | 0ヶ月 | 詳細 | 契約済み | + |
| 9階 | 2LDK | 68.83㎡ | 337000円 | 20000円 | 2ヶ月 | 0ヶ月 | 詳細 | 契約済み | + |
| 9階 | 2LDK | 78.95㎡ | 364000円 | 30000円 | 1ヶ月 | 2ヶ月 | 詳細 | 契約済み | + |
| 10階 | 3LDK | 84.96㎡ | 468000円 | 30000円 | 1ヶ月 | 2ヶ月 | 詳細 | 契約済み | + |
| 10階 | 2LDK | 84.51㎡ | 418000円 | 30000円 | 1ヶ月 | 2ヶ月 | 詳細 | 契約済み | + |
| 11階 | 3LDK | 84.96㎡ | 455000円 | 30000円 | 1ヶ月 | 2ヶ月 | 詳細 | 契約済み | + |
| 11階 | 1LDK | 44.64㎡ | 218000円 | 10000円 | 2ヶ月 | 0ヶ月 | 詳細 | 契約済み | + |
| 11階 | 2LDK | 56.24㎡ | 278000円 | 10000円 | 2ヶ月 | 0ヶ月 | 詳細 | 契約済み | + |
| 11階 | 2LDK | 45.84㎡ | 241000円 | 10000円 | 1ヶ月 | 2ヶ月 | 詳細 | 契約済み | + |
| 12階 | 1LDK | 53.15㎡ | 255000円 | 10000円 | 2ヶ月 | 0ヶ月 | 詳細 | 契約済み | + |
| 13階 | 2LDK | 64.34㎡ | 310000円 | 15000円 | 2ヶ月 | 0ヶ月 | 詳細 | 契約済み | + |
| 14階 | 2LDK | 86.25㎡ | 500000円 | 30000円 | 1ヶ月 | 2ヶ月 | 詳細 | 問合せ | + |
| 15階 | 2LDK | 63.66㎡ | 292000円 | 15000円 | 2ヶ月 | 0ヶ月 | 詳細 | 契約済み | + |
| 16階 | 2LDK | 86.25㎡ | 398000円 | 30000円 | 2ヶ月 | 0ヶ月 | 詳細 | 契約済み | + |
| 17階 | 1LDK | 55.81㎡ | 274000円 | 10000円 | 2ヶ月 | 0ヶ月 | 詳細 | 契約済み | + |
| 18階 | 2LDK | 68.83㎡ | 429000円 | 30000円 | 2ヶ月 | 0ヶ月 | 詳細 | 契約済み | + |
| 18階 | 2LDK | 66.27㎡ | 335000円 | 20000円 | 1ヶ月 | 2ヶ月 | 詳細 | 契約済み | + |
| 19階 | 2LDK | 105.83㎡ | 519000円 | 50000円 | 2ヶ月 | 1ヶ月 | 詳細 | 契約済み | + |
| 19階 | 2LDK | 109.87㎡ | 530000円 | 50000円 | 1ヶ月 | 2ヶ月 | 詳細 | 契約済み | + |
| 20階 | 2LDK | 106.47㎡ | 518000円 | 50000円 | 1ヶ月 | 0ヶ月 | 詳細 | 契約済み | + |
| 20階 | 2LDK | 120.21㎡ | 568000円 | 50000円 | 1ヶ月 | 2ヶ月 | 詳細 | 契約済み | + |
| 22階 | 2LDK | 120.21㎡ | 750000円 | 0円 | 2ヶ月 | 0ヶ月 | 詳細 | 契約済み | + |
| 22階 | 2LDK | 105.83㎡ | 648000円 | 50000円 | 1ヶ月 | 2ヶ月 | 詳細 | 契約済み | + |
| 23階 | 2LDK | 109.87㎡ | 650000円 | 0円 | 2ヶ月 | 0ヶ月 | 詳細 | 契約済み | + |
| 23階 | 2LDK | 105.83㎡ | 550000円 | 30000円 | 1ヶ月 | 2ヶ月 | 詳細 | 契約済み | + |
| 24階 | 2LDK | 106.47㎡ | 550000円 | 50000円 | 1ヶ月 | 2ヶ月 | 詳細 | 契約済み | + |
| 24階 | 2LDK | 105.83㎡ | 524000円 | 50000円 | 2ヶ月 | 1ヶ月 | 詳細 | 契約済み | + |
| 24階 | 2LDK | 105.83㎡ | 548000円 | 0円 | 2ヶ月 | 0ヶ月 | 詳細 | 契約済み | + |
| 24階 | 2LDK | 106.47㎡ | 535000円 | 50000円 | 2ヶ月 | 1ヶ月 | 詳細 | 契約済み | + |























