decimo AZABU (デシモ麻布) | 7階 | 1DK
ポイント
デザイナーズ・コンクリート打ちっ放し・人気の麻布十番・SOHO相談可能です
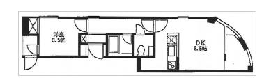
decimo AZABU (デシモ麻布)7階、1DK(30.62㎡)。【DK8.5帖/洋室3.5帖】の角部屋2面採光の1DKタイプのお部屋となります。カウンターキッチンタイプですので、お料理をされる方も便利。コンクリート打ちっ放しの天井高もあるお部屋です。オートバス機能付。リビング側はバルコニー付。~高級賃貸.jpは「decimo AZABU (デシモ麻布)」の全てのお部屋をご紹介可能です。最新空室情報ほか、掲載中のお部屋以外にもご希望があればお気軽にお問合わせください~
| 所在階 | 間取 | 面積 | 賃料 | 管理費 | 敷金 | 礼金 | 築年数 | お問合せ | お気に入り |
|---|---|---|---|---|---|---|---|---|---|
| 7階 | 1DK | 30.62m² | 156,000円 | 8,000円 | 2ヶ月 | 0ヶ月 | 2005年05月 | 契約済み | + |
| 物件名 | decimo AZABU (デシモ麻布) | ||
|---|---|---|---|
| 住所 | 東京都港区麻布十番3-7-5 地図 | ||
| 最寄駅 | 東京メトロ南北線 麻布十番駅 徒歩3分 都営大江戸線 麻布十番駅 徒歩3分 都営大江戸線 赤羽橋駅 徒歩13分 |
||
| 賃料 | 156,000円 | 管理費 | 8,000円 |
| 間取り | 1DK | 面積 | 30.62m² |
| 築年月 | 2005年05月 | 構造 | RC造 |
| 総階数 | 地上9階地下1階 | 入居 | 即 |
| 更新料 | 新賃料1ヶ月分。 | 駐車場 | |
| 設備 | 2階以上, デザイナーズ, 礼金0, SOHO可, 駅近(5分以内), 複数駅利用可, 複数路線利用可, 角部屋, 日当り良好, 天井高, オートロック, TVインターフォン, システムキッチン, カウンターキッチン, 独立キッチン, ガスコンロ, バス・トイレ別, ウォシュレット, 独立洗面台, オートバス, 浴室乾燥機, フローリング, エアコン, クローゼット, バルコニー, ゴミ置場 (敷地内), インターネット対応, 宅配ボックス, | ||
| 備考 | 問合番号 | kc0867-702 | |
この物件の空室一覧
| 所在階 | 間取 | 面積 | 賃料 | 管理費 | 敷金 | 礼金 | 詳細 | 問合せ | お気に入り |
|---|---|---|---|---|---|---|---|---|---|
| 6階 | 1DK | 30.62㎡ | 152000円 | 8000円 | 2ヶ月 | 0ヶ月 | 詳細 | 契約済み | + |






















