プレミアムキューブ三田(PREMIUM CUBE MITA) | 5階 | 1K
ポイント
南向き、角部屋、ペット可、敷金1ヵ月・礼金1ヵ月
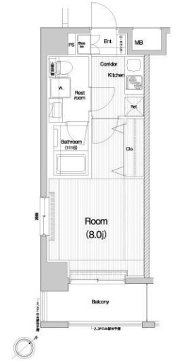
プレミアムキューブ三田(PREMIUM CUBE MITA)5階1K(26.4㎡)ペット可のお部屋。【間取り/洋室8帖】南向き・角部屋の明るい室内です。ホテルライクな高級感溢れる内装。大型バスルーム・大型クローゼットも魅力的!!分譲賃貸ですので、設備・仕様はどれもしっかりしており快適な暮らしを提供。ワンランク上のお洒落な東京生活を堪能できます。
| 所在階 | 間取 | 面積 | 賃料 | 管理費 | 敷金 | 礼金 | 築年数 | お問合せ | お気に入り |
|---|---|---|---|---|---|---|---|---|---|
| 5階 | 1K | 26.40m² | 103,000円 | 8,000円 | 1ヶ月 | 1ヶ月 | 2010年06月 | 問合せ | + |
| 物件名 | プレミアムキューブ三田(PREMIUM CUBE MITA) | ||
|---|---|---|---|
| 住所 | 東京都港区芝1-13-10 地図 | ||
| 最寄駅 | JR山手線 田町駅 徒歩10分 都営三田線 三田駅 徒歩7分 |
||
| 賃料 | 103,000円 | 管理費 | 8,000円 |
| 間取り | 1K | 面積 | 26.40m² |
| 築年月 | 2010年06月 | 構造 | RC造 |
| 総階数 | 地上11階 | 入居 | 即 |
| 更新料 | 新賃料の1ヵ月分 | 駐車場 | |
| 設備 | 2階以上, デザイナーズ, 分譲賃貸, ペット可, 複数駅利用可, 複数路線利用可, 角部屋, 南向き, 日当り良好, オートロック, TVインターフォン, システムキッチン, ガスコンロ, バス・トイレ別, ウォシュレット, 独立洗面台, オートバス, 浴室乾燥機, フローリング, エアコン, クローゼット, バルコニー, ゴミ置場 (敷地内), インターネット対応, インターネット無料, 宅配ボックス, | ||
| 備考 | 問合番号 | kc1330-5A | |




















