ステージファースト代々木公園(STAGEFIRST代々木公園) | 8階 | 1LDK
ポイント
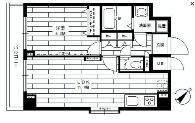
2面採光の角部屋の1LDKタイプ
ステージファースト代々木公園(STAGEFIRST代々木公園)8階、1LDK(42.73㎡)。【LDK11.7帖/洋室6.2帖】の2面採光の角部屋の1LDKタイプのお部屋となります。システムキッチンタイプですので、お料理をされる方も便利。オートバス機能付。バルコニー付。~高級賃貸.jpは「ステージファースト代々木公園(STAGEFIRST代々木公園)」の全てのお部屋をご紹介可能です。最新空室情報ほか、掲載中のお部屋以外にもご希望があればお気軽にお問合わせください~
| 所在階 | 間取 | 面積 | 賃料 | 管理費 | 敷金 | 礼金 | 築年数 | お問合せ | お気に入り |
|---|---|---|---|---|---|---|---|---|---|
| 8階 | 1LDK | 42.73m² | 175,000円 | 5,000円 | 1ヶ月 | 2ヶ月 | 2002年06月 | 問合せ | + |
| 物件名 | ステージファースト代々木公園(STAGE FIRST代々木公園) | ||
|---|---|---|---|
| 住所 | 東京都渋谷区富ヶ谷1-46-3 地図 | ||
| 最寄駅 | 東京メトロ千代田線 代々木公園駅 徒歩分 小田急小田原線 代々木八幡駅 徒歩分 |
||
| 賃料 | 175,000円 | 管理費 | 5,000円 |
| 間取り | 1LDK | 面積 | 42.73m² |
| 築年月 | 2002年06月 | 構造 | RC造 |
| 総階数 | 地上9階 | 入居 | |
| 更新料 | 新賃料の1ヶ月分 | 駐車場 | |
| 設備 | 2階以上, 分譲賃貸, 駅近(5分以内), 複数路線利用可, 角部屋, 南向き, 日当り良好, オートロック, TVインターフォン, ガスコンロ, 3口コンロ以上, バス・トイレ別, ウォシュレット, 独立洗面台, オートバス, 浴室乾燥機, フローリング, エアコン, クローゼット, ゴミ置場 (敷地内), インターネット対応, インターネット無料, 宅配ボックス, 駐車場有り, バイク置き場, | ||
| 備考 | 問合番号 | kc2004-803 | |
















