Hi-ROOMS明大前B (ハイルームスメイダイマエビー) | 2階 | 1LDK
ポイント
デザイナーズ、1LDK、ロフト、天井高、床暖房
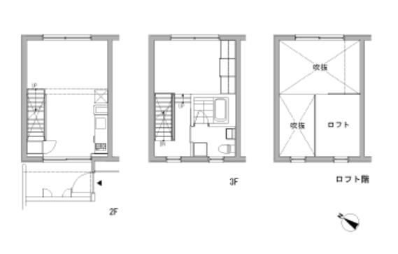
Hi-ROOMS明大前B (ハイルームスメイダイマエビー)ロフトつき1LDK(45.2㎡)リビングダイニング13.6帖/洋室6.4帖/ロフト4帖のお部屋。フローリングや建具など木の部分もあり、コンクリート打ち放しのかっこよさもありながら、温かみも感じられる内装になっています。床暖房など設備充実。~高級賃貸.jpは「Hi-ROOMS明大前B (ハイルームスメイダイマエビー)」の全てのお部屋をご紹介可能です。最新空室情報ほか、掲載中のお部屋以外にもご希望があればお気軽にお問合わせください。~
| 所在階 | 間取 | 面積 | 賃料 | 管理費 | 敷金 | 礼金 | 築年数 | お問合せ | お気に入り |
|---|---|---|---|---|---|---|---|---|---|
| 2階 | 1LDK | 65.20m² | 156,000円 | 6,700円 | 1ヶ月 | 0ヶ月 | 2008年06月 | 問合せ | + |
| 物件名 | Hi-ROOMS明大前B (ハイルームスメイダイマエビー) | ||
|---|---|---|---|
| 住所 | 東京都杉並区和泉2-11-1 地図 | ||
| 最寄駅 | 京王井の頭線 明大前駅 徒歩8分 京王京王線 代田橋駅 徒歩14分 |
||
| 賃料 | 156,000円 | 管理費 | 6,700円 |
| 間取り | 1LDK | 面積 | 65.20m² |
| 築年月 | 2008年06月 | 構造 | RC造 |
| 総階数 | 地上3階 | 入居 | 即 |
| 更新料 | 新賃料の1ヶ月分 | 駐車場 | 30,450/月 |
| 設備 | 2階以上, デザイナーズ, メゾネット, 礼金0, 複数駅利用可, 複数路線利用可, 天井高, オートロック, TVインターフォン, システムキッチン, ガスコンロ, バス・トイレ別, 独立洗面台, オートバス, 浴室乾燥機, フローリング, 床暖房, エアコン, クローゼット, バルコニー, ゴミ置場 (敷地内), インターネット対応, 駐車場有り, | ||
| 備考 | 問合番号 | kc2256 | |


















