sector11 (セクターイレブン) | 1階 | 1LDK
ポイント
メゾネット、天井高、SOHO相談、2口ガスコンロ
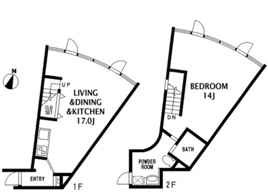
sector11(セクターイレブン)1階/2階1LDK(60.90㎡)メゾネットタイプのお部屋。【間取り/LDK17.0帖/洋室14.0帖】室内コンクリート打ちっぱなしタイプのおしゃれな室内。窓が大きく、天井も高いので、開放感に溢れる明るい雰囲気です。SOHO相談可、ルームシェアも相談可です。2口ガスコンロ完備のシステムキッチンですので、お料理をされる方にも便利。~sector11(セクターイレブン)のすべてのお部屋をご紹介可能です。~
| 所在階 | 間取 | 面積 | 賃料 | 管理費 | 敷金 | 礼金 | 築年数 | お問合せ | お気に入り |
|---|---|---|---|---|---|---|---|---|---|
| 1階 | 1LDK | 60.90m² | 175,000円 | 0円 | 1ヶ月 | 1ヶ月 | 2007年07月 | 契約済み | + |
| 物件名 | sector11 (セクターイレブン) | ||
|---|---|---|---|
| 住所 | 東京都世田谷区桜新町1-4-5 地図 | ||
| 最寄駅 | 東急田園都市線 桜新町駅 徒歩5分 東急田園都市線 用賀駅 徒歩12分 東急世田谷線 上町駅 徒歩23分 |
||
| 賃料 | 175,000円 | 管理費 | 0円 |
| 間取り | 1LDK | 面積 | 60.90m² |
| 築年月 | 2007年07月 | 構造 | RC造 |
| 総階数 | 地上5階 | 入居 | 即 |
| 更新料 | 新賃料1ヶ月 | 駐車場 | |
| 設備 | 2階以上, メゾネット, SOHO可, 駅近(5分以内), 複数駅利用可, 複数路線利用可, 天井高, TVインターフォン, システムキッチン, ガスコンロ, バス・トイレ別, 独立洗面台, オートバス, 浴室乾燥機, フローリング, エアコン, クローゼット, バルコニー, ゴミ置場 (敷地内), インターネット対応, | ||
| 備考 | 問合番号 | kc2766-1 | |

























