シャネックス (CHANEX) | 4階 | 2LDK
ポイント
楽器可、4口ガスキッチン、冷蔵庫、食洗機、洗濯乾燥機
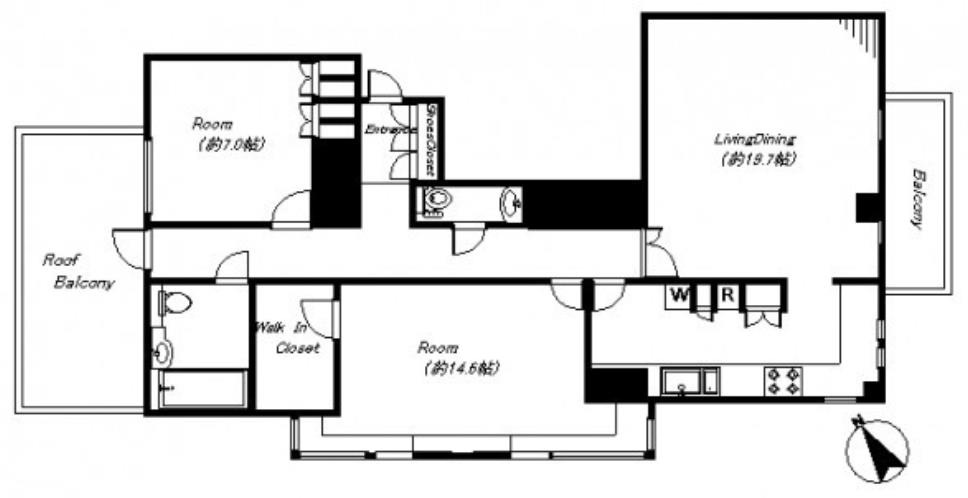
シャネックス(CHANEX)4階2LDK(122.52㎡)角部屋のお部屋。【間取り/LDK26.9帖/洋室14.6帖/洋室7.0帖】バルコニーが2箇所あり、日当たり良好です。キッチンは4口コンロ完備のカウンター付キッチン。とても広々とており使い心地の良いキッチンです。収納スペースも豊富にございます。冷蔵庫、食洗機、洗濯乾燥機等、充実した家電設備も多く揃っております。~シャネックス(CHANEX)のすべてのお部屋をご紹介可能です。~
| 所在階 | 間取 | 面積 | 賃料 | 管理費 | 敷金 | 礼金 | 築年数 | お問合せ | お気に入り |
|---|---|---|---|---|---|---|---|---|---|
| 4階 | 2LDK | 122.52m² | 380,000円 | 0円 | 2ヶ月 | 1ヶ月 | 1994年05月 | 契約済み | + |
| 物件名 | シャネックス (CHANEX) | ||
|---|---|---|---|
| 住所 | 東京都港区三田4-12-14 地図 | ||
| 最寄駅 | JR山手線 田町駅 徒歩9分 都営浅草線 泉岳寺駅 徒歩10分 都営浅草線 三田駅 徒歩8分 |
||
| 賃料 | 380,000円 | 管理費 | 0円 |
| 間取り | 2LDK | 面積 | 122.52m² |
| 築年月 | 1994年05月 | 構造 | RC造 |
| 総階数 | 地上5階 | 入居 | 即 |
| 更新料 | 無 | 駐車場 | 月額 50,000円~ |
| 設備 | 2階以上, 低層, SOHO可, 楽器可, 複数駅利用可, 複数路線利用可, ルーフバルコニー, LDK18畳以上, LDK25畳以上, 角部屋, 日当り良好, オートロック, TVインターフォン, システムキッチン, カウンターキッチン, 独立キッチン, ガスコンロ, 3口コンロ以上, 浄水器, 食器洗乾燥機, バス・トイレ別, ウォシュレット, 独立洗面台, オートバス, 洗濯乾燥機, フローリング, エアコン, クローゼット, ウォークインクローゼット, バルコニー, ゴミ置場 (敷地内), インターネット対応, 駐車場有り, | ||
| 備考 | 問合番号 | kc3315-402 | |
この物件の空室一覧
| 所在階 | 間取 | 面積 | 賃料 | 管理費 | 敷金 | 礼金 | 詳細 | 問合せ | お気に入り |
|---|---|---|---|---|---|---|---|---|---|
| 2階 | 3LDK | 141.09㎡ | 430000円 | 0円 | 2ヶ月 | 1ヶ月 | 詳細 | 契約済み | + |
| 5階 | 2LDK | 117.04㎡ | 400000円 | 0円 | 2ヶ月 | 1ヶ月 | 詳細 | 契約済み | + |























