グランフォルム上原 (GRAND FORME 上原) | 2階 | 3LDK
ポイント
ペット可、事務所使用可、角部屋、3面採光、メゾネット
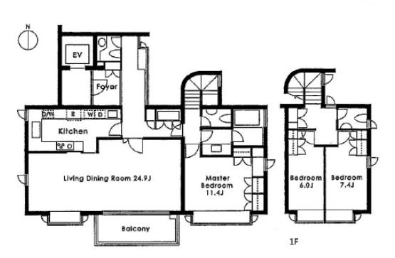
グランフォルム上原(GRAND FORME 上原)2階3LDK(148.27㎡)ペット可・メゾネットタイプのお部屋。【間取り/LDK24.9帖/洋室11.4帖/洋室7.4帖/洋室6.0帖】1階と2階から構成されたメゾネットタイプのお部屋で開放的な空間があり、戸建て感覚で暮らせるお部屋です。ペット可・事務所使用可で南向きバルコニー付の角部屋だから、日当たり良好です。1階ですが、高さは2階の高さがあり、目線は気になりません。~グランフォルム上原(GRAND FORME 上原)のすべてのお部屋をご紹介可能です。~
| 所在階 | 間取 | 面積 | 賃料 | 管理費 | 敷金 | 礼金 | 築年数 | お問合せ | お気に入り |
|---|---|---|---|---|---|---|---|---|---|
| 2階 | 3LDK | 148.27m² | 490,000円 | 0円 | 2ヶ月 | 1ヶ月 | 1989年04月 | 契約済み | + |
| 物件名 | グランフォルム上原 (GRAND FORME 上原) | ||
|---|---|---|---|
| 住所 | 東京都渋谷区上原2-5-9 地図 | ||
| 最寄駅 | 東京メトロ千代田線 代々木上原駅 徒歩6分 小田急小田原線 代々木上原駅 徒歩6分 東京メトロ千代田線 代々木公園駅 徒歩9分 |
||
| 賃料 | 490,000円 | 管理費 | 0円 |
| 間取り | 3LDK | 面積 | 148.27m² |
| 築年月 | 1989年04月 | 構造 | RC造 |
| 総階数 | 地上3階 | 入居 | 即 |
| 更新料 | 新賃料1ヶ月 | 駐車場 | 無料 |
| 設備 | 2階以上, 分譲賃貸, メゾネット, ペット可, SOHO可, 複数駅利用可, 複数路線利用可, LDK18畳以上, 角部屋, 南向き, 日当り良好, オートロック, TVインターフォン, システムキッチン, 独立キッチン, ガスコンロ, 3口コンロ以上, 浄水器, 食器洗乾燥機, バス・トイレ別, ウォシュレット, 独立洗面台, オートバス, 浴室乾燥機, 洗濯乾燥機, フローリング, エアコン, クローゼット, ウォークインクローゼット, バルコニー, ゴミ置場 (敷地内), インターネット対応, 宅配ボックス, 駐車場有り, | ||
| 備考 | 問合番号 | kc3260-2 | |
この物件の空室一覧
| 所在階 | 間取 | 面積 | 賃料 | 管理費 | 敷金 | 礼金 | 詳細 | 問合せ | お気に入り |
|---|---|---|---|---|---|---|---|---|---|
| 1階 | 3LDK | 148.29㎡ | 590000円 | 0円 | 2ヶ月 | 1ヶ月 | 詳細 | 契約済み | + |






















